9 Prospect Park West, Unit GRND












Description
Welcome to 9 Prospect Park West, Unit 1B, a beautiful and built-out office co-op that sits in the heart of one of Brooklyn's most prestigious areas only steps from Prospect Park. This fully renovated unit features a large reception area, two bathrooms, windowed offices, and three built-out exam rooms for patients. Currently a community facility space, there is opportunity here for most if not all medical uses, non-profit offices or clinics, childcare/daycare...*Notes: Owner-Financing is now possible.
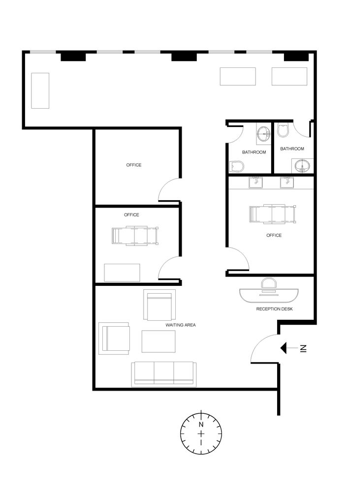
Welcome to 9 Prospect Park West, Unit 1B, a beautiful and built-out office co-op that sits in the heart of one of Brooklyn's most prestigious areas only steps from Prospect Park. This fully renovated unit features a large reception area, two bathrooms, windowed offices, and three built-out exam rooms for patients. Currently a community facility space, there is opportunity here for most if not all medical uses, non-profit offices or clinics, childcare/daycare centers, etc.
Feel free to reach out to schedule a showing to see this remarkable unit. Co-brokers welcome and encouraged.
Highlights:
-Steps from North Prospect Park Entrance
-Multiple Uses: Medical, Non-Profit Office/Clinic, Childcare, Etc.
-Easy Commute close to the 2, 3, B, and Q stops
-Full-Service/Doorman Building
-One of the Best Locations in all of NYC
Listing Agent
nathan.horne@compass.comP: (706)-255-5657
Amenities
- Full-Time Doorman
- Elevator
- Laundry in Building
- Bike Room
- Private Storage Included
- Midrise
- Highrise
Property Details for 9 Prospect Park West, Unit GRND
| Status | Active |
|---|---|
| Days on Market | 6 |
| Taxes | - |
| Maintenance | $2,552 / month |
| Min. Down Pymt | 20% |
| Total Rooms | 8.0 |
| Compass Type | Co-op |
| MLS Type | - |
| Year Built | 1929 |
| County | Kings County |
Building
9 Prospect Park West
Location
Building Information for 9 Prospect Park West, Unit GRND
Payment Calculator
$6,086 per month
30 year fixed, 6.15% Interest
$3,534
$0
$2,552
Property History for 9 Prospect Park West, Unit GRND
| Date | Event & Source | Price | Appreciation |
|---|---|---|---|
| Feb 1, 2026 | Listed (Active) Manual | $725,000 | — |
| Dec 24, 2025 | Permanently Off Market Manual | — | |
| Jul 31, 2025 | Price Change Manual | $725,000 | — |
| Jul 15, 2025 | Price Change Manual | $750,000 | — |
| Sep 24, 2024 | Listed (Active) Manual | $995,000 | — |
| Date | Event & Source | Price |
|---|---|---|
| 02/01/2026 | Listed (Active) Manual | $725,000 |
| 12/24/2025 | Permanently Off Market Manual | — |
| 07/31/2025 | Price Change Manual | $725,000 |
| 07/15/2025 | Price Change Manual | $750,000 |
| 09/24/2024 | Listed (Active) Manual | $995,000 |
For completeness, Compass often displays two records for one sale: the MLS record and the public record.
Schools near 9 Prospect Park West, Unit GRND
Rating | School | Type | Grades | Distance |
|---|---|---|---|---|
| Public - | K to 5 | |||
| Public - | 6 to 12 | |||
| Public - | 9 to 12 | |||
| Public - | 9 to 12 |
Rating | School | Distance |
|---|---|---|
P.S. 321 William Penn PublicK to 5 | ||
Park Slope Collegiate Public6 to 12 | ||
Cyberarts Studio Academy Public9 to 12 | ||
Millennium Brooklyn High School Public9 to 12 |
School ratings and boundaries are provided by GreatSchools.org and Pitney Bowes. This information should only be used as a reference. Proximity or boundaries shown here are not a guarantee of enrollment. Please reach out to schools directly to verify all information and enrollment eligibility.
Neighborhood Map and Transit
Similar Homes
Similar Sold Homes
Explore Nearby Homes
- Carroll Gardens Homes for Sale
- Central Brooklyn Homes for Sale
- Central Slope Homes for Sale
- Gowanus Homes for Sale
- Greenwood Heights Homes for Sale
- North Slope Homes for Sale
- Park Slope Homes for Sale
- Prospect Lefferts Gardens Homes for Sale
- South Brooklyn Homes for Sale
- South Slope Homes for Sale
- Windsor Terrace Homes for Sale
- Red Hook Homes for Sale
- Prospect Park South Homes for Sale
- Northwestern Brooklyn Homes for Sale
- Prospect Heights Homes for Sale
- Brooklyn Homes for Sale
- New York Homes for Sale
- Manhattan Homes for Sale
- Jersey City Homes for Sale
- Bayonne Homes for Sale
- Queens Homes for Sale
- Hoboken Homes for Sale
- Staten Island Homes for Sale
- Weehawken Homes for Sale
- Union City Homes for Sale
- North Bergen Homes for Sale
- Kearny Homes for Sale
- Newark Homes for Sale
- West New York Homes for Sale
- Secaucus Homes for Sale
- 11218 Homes for Sale
- 11217 Homes for Sale
- 11238 Homes for Sale
- 11232 Homes for Sale
- 11231 Homes for Sale
- 11225 Homes for Sale
- 11226 Homes for Sale
- 11201 Homes for Sale
- 11216 Homes for Sale
- 11243 Homes for Sale
- 11219 Homes for Sale
- 11213 Homes for Sale
- 11203 Homes for Sale
- 11205 Homes for Sale
- 11242 Homes for Sale
No guarantee, warranty or representation of any kind is made regarding the completeness or accuracy of descriptions or measurements (including square footage measurements and property condition), such should be independently verified, and Compass, Inc., its subsidiaries, affiliates and their agents and associated third parties expressly disclaims any liability in connection therewith. Photos may be virtually staged or digitally enhanced and may not reflect actual property conditions. Offers of compensation are subject to change at the discretion of the seller. No financial or legal advice provided. Equal Housing Opportunity.
This information is not verified for authenticity or accuracy and is not guaranteed and may not reflect all real estate activity in the market. ©2026 The Real Estate Board of New York, Inc., All rights reserved. The source of the displayed data is either the property owner or public record provided by non-governmental third parties. It is believed to be reliable but not guaranteed. This information is provided exclusively for consumers’ personal, non-commercial use. The data relating to real estate for sale on this website comes in part from the IDX Program of OneKey® MLS. Information Copyright 2026, OneKey® MLS. All data is deemed reliable but is not guaranteed accurate by Compass. See Terms of Service for additional restrictions. Compass · Tel: 212-913-9058 · New York, NY Listing information for certain New York City properties provided courtesy of the Real Estate Board of New York’s Residential Listing Service (the "RLS"). The information contained in this listing has not been verified by the RLS and should be verified by the consumer. The listing information provided here is for the consumer’s personal, non-commercial use. Retransmission, redistribution or copying of this listing information is strictly prohibited except in connection with a consumer's consideration of the purchase and/or sale of an individual property. This listing information is not verified for authenticity or accuracy and is not guaranteed and may not reflect all real estate activity in the market. ©2026 The Real Estate Board of New York, Inc., all rights reserved. This information is not guaranteed, should be independently verified and may not reflect all real estate activity in the market. Offers of compensation set forth here are for other RLSParticipants only and may not reflect other agreements between a consumer and their broker.©2026 The Real Estate Board of New York, Inc., All rights reserved.












