201 East 21st Street, Unit 4M











Description
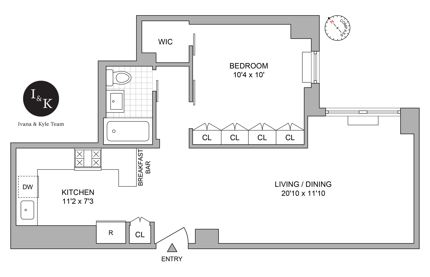
The open-concept chef’s kitchen is a culinary delight, boasting Carrera marble countertops, sleek white cabinetry with matte black hardware, and custom-crafted floating shelves made from reclaimed white oak. A breakfast...Elegantly renovated throughout, this stylish one-bedroom home features a gracious layout adorned with wide-plank white oak floors. The spacious living room comfortably accommodates an 80” sofa, end tables, and two chairs, while the dining area is perfectly suited for a table for six.
The open-concept chef’s kitchen is a culinary delight, boasting Carrera marble countertops, sleek white cabinetry with matte black hardware, and custom-crafted floating shelves made from reclaimed white oak. A breakfast bar for two adds a casual dining option, and the kitchen is equipped with a gas stove, deep stainless steel sink, dishwasher, and built-in fridge/freezer.
The bathroom is a serene retreat with a glass shower and an extra-large medicine cabinet. Custom pocket doors enhance the apartment's sleek lines, creating a seamless flow throughout the space. Designed by a former fashion editor, the home includes three spacious closets: a coat closet with additional storage above the entryway, a full wall of floor-to-ceiling closets, and a walk-in closet in the bedroom. The bedroom comfortably fits a queen-size bed with two end tables or a king bed
The apartment benefits from abundant natural light with dual exposures and remains pin-drop quiet. New central air conditioning with custom covers and thermostats integrates seamlessly into the space.
Located in the sought-after Quaker Ridge, a full-service building with common laundry facilities and live-in resident manager, this home is situated in the superb Gramercy area. Enjoy proximity to the Union Sq Greenmarket and a variety of excellent restaurants, shops, and convenient transportation options.
Maintenance includes energy surcharge which is adjusted quarterly.
Listing Agents
kyle.haas@compass.comP: (917)-414-7901
ivana@compass.comP: (917)-538-9763
Amenities
- Full-Time Doorman
- Concierge
- Hardwood Floors
- Elevator
- Laundry in Building
- Central AC
- On-site Parking For Rent
- Total Renovation
Open Houses
Sunday, Feb 8th
2:00 PM - 3:00 PM
Public
Property Details for 201 East 21st Street, Unit 4M
| Status | Active |
|---|---|
| Days on Market | 3 |
| Taxes | - |
| Maintenance | $1,364 / month |
| Min. Down Pymt | 25% |
| Total Rooms | 3.0 |
| Compass Type | Co-op |
| MLS Type | - |
| Year Built | 1962 |
| County | New York County |
| Buyer's Agent Compensation | 2.5% |
Building
Quaker Ridge
Location
Building Information for 201 East 21st Street, Unit 4M
Payment Calculator
$4,334 per month
30 year fixed, 6.15% Interest
$2,970
$0
$1,364
Property History for 201 East 21st Street, Unit 4M
| Date | Event & Source | Price |
|---|---|---|
| 02/05/2026 | Listed (Active) Manual | $650,000 |
| 03/03/2025 | Temporarily Off Market Manual | — |
| 02/24/2025 | Price Change Manual | $725,000 |
| 01/25/2025 | Listed (Active) Manual | $749,000 |
| 06/28/2017 | $675,000 | |
| 06/28/2017 | $675,000 +3.6% / yr | |
| 03/02/2017 | $625,000 | |
| 11/30/2006 | $465,000 |
For completeness, Compass often displays two records for one sale: the MLS record and the public record.
Public Records for 201 East 21st Street, Unit 4M
Schools near 201 East 21st Street, Unit 4M
Rating | School | Type | Grades | Distance |
|---|---|---|---|---|
| Public - | PK to 5 | |||
| Public - | 6 to 8 | |||
| Public - | 6 to 8 | |||
| Public - | 6 to 8 |
Rating | School | Distance |
|---|---|---|
P.S. 40 Augustus St.-Gaudens PublicPK to 5 | ||
Nyc Lab Ms For Collaborative Studies Public6 to 8 | ||
Lower Manhattan Community Middle School Public6 to 8 | ||
Jhs 104 Simon Baruch Public6 to 8 |
School ratings and boundaries are provided by GreatSchools.org and Pitney Bowes. This information should only be used as a reference. Proximity or boundaries shown here are not a guarantee of enrollment. Please reach out to schools directly to verify all information and enrollment eligibility.
Neighborhood Map and Transit
Similar Homes
Similar Sold Homes
Explore Nearby Homes
- Chelsea Homes for Sale
- Downtown Manhattan Homes for Sale
- Flatiron Homes for Sale
- Gramercy Homes for Sale
- Kips Bay Homes for Sale
- Midtown Manhattan Homes for Sale
- Murray Hill Homes for Sale
- NoMad Homes for Sale
- Peter Cooper Village Homes for Sale
- Rose Hill Homes for Sale
- StuyTown Homes for Sale
- Midtown South Homes for Sale
- East Village Homes for Sale
- Alphabet City Homes for Sale
- Greenwich Village Homes for Sale
- New York Homes for Sale
- Manhattan Homes for Sale
- Brooklyn Homes for Sale
- Queens Homes for Sale
- Hoboken Homes for Sale
- Weehawken Homes for Sale
- Jersey City Homes for Sale
- West New York Homes for Sale
- Union City Homes for Sale
- Guttenberg Homes for Sale
- North Bergen Homes for Sale
- Secaucus Homes for Sale
- Edgewater Homes for Sale
- Cliffside Park Homes for Sale
- Kearny Homes for Sale
- 10016 Homes for Sale
- 10001 Homes for Sale
- 10003 Homes for Sale
- 10009 Homes for Sale
- 10011 Homes for Sale
- 10121 Homes for Sale
- 10017 Homes for Sale
- 10119 Homes for Sale
- 10018 Homes for Sale
- 10158 Homes for Sale
- 10122 Homes for Sale
- 10014 Homes for Sale
- 10199 Homes for Sale
- 11101 Homes for Sale
- 11222 Homes for Sale
No guarantee, warranty or representation of any kind is made regarding the completeness or accuracy of descriptions or measurements (including square footage measurements and property condition), such should be independently verified, and Compass, Inc., its subsidiaries, affiliates and their agents and associated third parties expressly disclaims any liability in connection therewith. Photos may be virtually staged or digitally enhanced and may not reflect actual property conditions. Offers of compensation are subject to change at the discretion of the seller. No financial or legal advice provided. Equal Housing Opportunity.
This information is not verified for authenticity or accuracy and is not guaranteed and may not reflect all real estate activity in the market. ©2026 The Real Estate Board of New York, Inc., All rights reserved. The source of the displayed data is either the property owner or public record provided by non-governmental third parties. It is believed to be reliable but not guaranteed. This information is provided exclusively for consumers’ personal, non-commercial use. The data relating to real estate for sale on this website comes in part from the IDX Program of OneKey® MLS. Information Copyright 2026, OneKey® MLS. All data is deemed reliable but is not guaranteed accurate by Compass. See Terms of Service for additional restrictions. Compass · Tel: 212-913-9058 · New York, NY Listing information for certain New York City properties provided courtesy of the Real Estate Board of New York’s Residential Listing Service (the "RLS"). The information contained in this listing has not been verified by the RLS and should be verified by the consumer. The listing information provided here is for the consumer’s personal, non-commercial use. Retransmission, redistribution or copying of this listing information is strictly prohibited except in connection with a consumer's consideration of the purchase and/or sale of an individual property. This listing information is not verified for authenticity or accuracy and is not guaranteed and may not reflect all real estate activity in the market. ©2026 The Real Estate Board of New York, Inc., all rights reserved. This information is not guaranteed, should be independently verified and may not reflect all real estate activity in the market. Offers of compensation set forth here are for other RLSParticipants only and may not reflect other agreements between a consumer and their broker.©2026 The Real Estate Board of New York, Inc., All rights reserved.












